Pode realizar aqui a configuração individual do seu Sistema de Calha Articulada. As especificações e alterações introduzidas são registadas na lista de peças que se encontra localizada no fim da página.
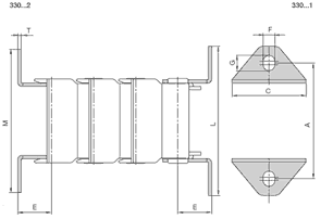
Calhas articuladas de série E332.32.2 para movimentos em 1 ou 2 direções
1. Terminais de fixação KMA com pente integrado
2. Desenho patenteado de encaixe
3. Instalação e desmontagem possível em qualquer posição
4. Combinação de diferentes raios de curvatura e direcções de movimento
5. Duplo compartimento, desenho tipo "Easy Chain®" de fácil preenchimento: basta pressionar o cabo pelo raio interior ou exterior
6. Movimentos em 3 eixos para qualquer tipo de máquina
7. Possibilidade de aplicações robóticas
8. Vencedora do prémio if-Design