Pode realizar aqui a configuração individual do seu Sistema de Calha Articulada. As especificações e alterações introduzidas são registadas na lista de peças que se encontra localizada no fim da página.
Série 2400AG - Calhas articuladas, com abertura pelo raio interior
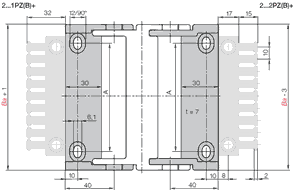
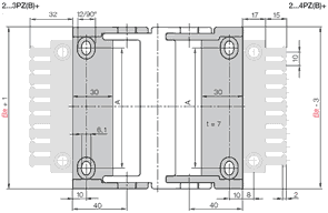
O sistema autoglide foi agora adaptado e otimizado para a gama E2/000 da igus®. O aumento da superfície deslizante através de uma maior largura das travessas autoglide garante uma maior duração de vida do sistema. Uma aba deslizante de encaixe garante o alinhamento seguro da calha articulada nos primeiros metros do curso. Os suportes guia excêntricos estão fixos ao chão a cada 2 metros.
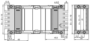
Comprimento da calha = S + K3
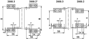
são necessárias 2 abas deslizantes por cada calha articulada