Selecione o local de entrega

A seleção do país/região pode influenciar vários fatores, tais como preço, opções de envio e disponibilidade de produtos.
Contato responsável
igus® do Brasil Ltda

Rua Antônio Christi, Nº 611

Parque Industrial III - FAZGRAN

13213-183 – Jundiaí-SP

+55 11 3531 4487
+55 11 3531 4488
BR(PT)

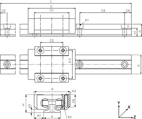
drylin® T - Low-profile guide

drylin® T low profile linear guide system

drylin® T low profile linear guide system - linear systems in compact design, four installation sizes, lubrication-free and maintenance-free

Maintenance-free, dry operation

Robust sliding carriage, not adjustable

Carriage body made of zinc

Wear resistant and interchangeable gliding elements made of iglidur® J (or iglidur® J200 for TW-04-07)

Hard-anodised aluminium rail

Low installation height

Corrosion-free

Hole pitches symmetrical C5 = C6

Dimensioned identical to low profile recirculating ball guide systems


drylin® T low profile linear guide as adjustable version, size 12

drylin® T low profile linear guide as adjustable version of size 12 in 8 levels

In size 12, the bearing clearance in miniature carriages TWE-04-12 can be easily adjusted with a screwdriver.

Adjustable bearing clearance

Lubricant- and maintance-free

High corrosion resistance through E-coating

Quiet running

Compact design


Ordering of a complete system

Configuration in few steps:

1. Selection of the installation size
2. Selection of the number of carriages per rail
3. Entry of the rail length in mm
4. Selection of the floating bearing option

Hint:

Detailed information can be found in the drawings and tables above, as well as in the below-mentioned pages. You can obtain precise specifications on the floating bearing options within the design rules.
1

no floating bearing

2

Floating bearing in y-direction

3

Floating bearing in z-direction

drylin® TK-04 – complete set

Step 1

Select the installation size of the carriage.

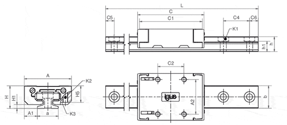
technical drawing
Installation size of the carriage:

T low profile guide rails

a [mm]:

 

DryLin® T low-profile guide rails

Order no.   Weight L
max.
a
-0,2
b C4 C5
min.
C5
max.
C6
min.
C6
max.
h h1 K1* ly lz Wby Wbz Price / m  
    [kg/m] [mm] [mm] [mm] [mm] [mm] [mm] [mm] [mm]       [mm4] [mm4] [mm3] [mm3]    
Prontos para envio à partir de 10 dias úteis TS-04-07-UNGEBOHRT R$ 144,81 Colocar no carrinho de compras
Prontos para envio à partir de 10 dias úteis TS-04-09-UNGEBOHRT R$ 460,73 Colocar no carrinho de compras
Prontos para envio à partir de 10 dias úteis TS-04-12-UNGEBOHRT R$ 222,91 Colocar no carrinho de compras
Prontos para envio à partir de 10 dias úteis TS-04-15-UNGEBOHRT R$ 207,38 Colocar no carrinho de compras
Prontos para envio à partir de 24 horas TS-04-07 NEW 0,08 2000 7 8 15 5 12 5 12 5,5 3,7 M2 131 90 32 29 R$ 285,82 Colocar no carrinho de compras
Prontos para envio à partir de 10 dias úteis TS-04-09 0,11 2000 9 9,6 20 5 14,5 5 14,5 6,3 4,6 M2 252 169 52 49 R$ 237,55 Colocar no carrinho de compras
Prontos para envio à partir de 10 dias úteis TS-04-12 0,2 2000 12 13 25 5 17 5 17 8,6 5,9 M3 856 574 132 120 R$ 322,09 Colocar no carrinho de compras
Prontos para envio à partir de 10 dias úteis TS-04-15 0,33 3000 15 17 40 10 29,5 10 29,5 10,8 7 M3 2420 1410 285 239 R$ 246,61 Colocar no carrinho de compras
Mais sobre a peça selecionada:
3D-CAD 3D-CAD
Encomenda de amostras Encomenda de amostras
PDF PDF
Solicitação de cotação Solicitação de cotação
myCatalog myCatalog

*For screw DIN 912
For unbored rails please indicate "Unbored" in the remark.


T low profile carriage

H [mm]:

 

DryLin® T low-profile carriage

Order no.   Weight H
±0,2
A
±0,2
C
±0,3
A1
±0,35
A2 C1 C2 H1
±0,35
H5 K2** Tightening
torque
max.
K3*    
    [kg] [mm] [mm] [mm] [mm] [mm] [mm] [mm] [mm] [mm]   [Nm]      
Prontos para envio à partir de 24 horas TW-04-07 NEW 0,008 8 17 23 5 12 21 8 1,5 0 M2 0 R$ 122,03 Colocar no carrinho de compras
Prontos para envio à partir de 10 dias úteis TW-04-07-LLZ 0,008 8 17 23 5 12 21 8 1,5 0 M2 0 R$ 152,51 Colocar no carrinho de compras
Prontos para envio à partir de 24 horas TW-04-09 0,017 10 20 29 5,5 15 18 13 1,7 7,2 M2 0,25 (M2) R$ 105,11 Colocar no carrinho de compras
Prontos para envio à partir de 10 dias úteis TW-04-09-LLY 0,017 10 20 29 5,5 15 18 13 1,7 7,2 M2 0,25 (M2) R$ 160,74 Colocar no carrinho de compras
Prontos para envio à partir de 10 dias úteis TW-04-09-LLZ 0,017 10 20 29 5,5 15 18 13 1,7 7,2 M2 0,25 (M2) R$ 151,22 Colocar no carrinho de compras
Prontos para envio à partir de 10 dias úteis TW-04-12-LLY 0,034 13 27 34 7,5 20 22 15 2,2 9,5 M3 0,5 M2 (M3) R$ 184,18 Colocar no carrinho de compras
Prontos para envio à partir de 10 dias úteis TW-04-12-LLZ 0,034 13 27 34 7,5 20 22 15 2,2 9,5 M3 0,5 M2 (M3) R$ 195,78 Colocar no carrinho de compras
Prontos para envio à partir de 24 horas TW-04-12 0,034 13 27 34 7,5 20 22 15 2,2 9,5 M3 0,5 M2 (M3) R$ 127,77 Colocar no carrinho de compras
Prontos para envio à partir de 24 horas TW-04-15 0,061 16 32 42 8,5 25 31 20 2,8 11 M3 0,5 M2 (M3) R$ 157,67 Colocar no carrinho de compras
Prontos para envio à partir de 10 dias úteis TW-04-15-LLY 0,061 16 32 42 8,5 25 31 20 2,8 11 M3 0,5 M2 (M3) R$ 227,43 Colocar no carrinho de compras
Prontos para envio à partir de 24 horas TW-04-15-LLZ 0,061 16 32 42 8,5 25 31 20 2,8 11 M3 0,5 M2 (M3) R$ 227,43 Colocar no carrinho de compras
Mais sobre a peça selecionada:
3D-CAD 3D-CAD
Encomenda de amostras Encomenda de amostras
PDF PDF
Solicitação de cotação Solicitação de cotação
myCatalog myCatalog

*For screw DIN 912
** Thread
LLy for a carriage with floating bearing in y-direction
LLz for a carriage with floating bearing in z-direction

Assembly instruction drylin® TWE


Prontos para envio à partir de 24 horas
Prontos para envio à partir de 10 dias úteis

Consulta

Teremos muito prazer em esclarecer as suas dúvidas e perguntas pessoalmente

Envio e consulta

Pessoalmente:

De segunda à sexta das 7:30 às 17:18

Online:

24h